マンション
| 賃料 |
5.9万円 | 交通 | 日豊本線 「別府」駅 徒歩30分 |
|---|---|---|---|
| 間取り | 3DK | 所在地 | 大分県別府市南立石一区 3組 |
| 専有面積 | 55.19㎡ | 築年月(築年数) | 1987年 3月 (築38年) |
「利回り」は、当該不動産の1年間の予定賃料収入の不動産取得対価に対する割合であり、公租公課その他当該物件を維持するために必要な費用の控除前のものです。
また、予定賃料収入が確実に得られる事を保証するものではありません。

素敵な3DKのお部屋、見学大歓迎ですよ。急なお引越しにもうれしい、すぐに入居ができる空き部屋となっております。魅力溢れる角部屋は窓が多く風通しが良いので、満足いくと思います。フローリング張りの、過ごしやすいマンションとなっています。当社スタッフが地域の賃貸情報をご提供いたします。お客様のこだわりやご要望などございましたら、お気軽に当社へお問い合わせ下さい。

※地図上の物件位置は近隣に物件が所在することを表すものであり、実際の物件所在地とは異なる場合がございます。
0977-23-3911
営業時間:10:00~18:00 / 定休日:水
| 所在地 | 大分県別府市南立石一区 3組 | ||
|---|---|---|---|
| 交通 | 日豊本線 「別府」駅 徒歩30分 | ||
| 賃料 | 5.9万円 | 管理費 | 5,000円 |
| 敷金/保証金/礼金 | 0ヶ月 / 0ヶ月 / 1ヶ月 | 敷引/償却 | - / - |
| 敷金積み増し | |||
| 更新料 | 更新事務手数料 | ||
| 権利金 | 雑費 | ||
| 所在階/階数 | 3階 / 12階建 | 専有面積 | 55.19㎡ |
| 間取り |
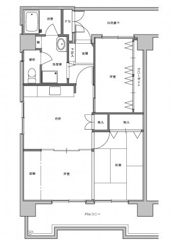
3DK
洋室 6.0帖 / 和室 6.0帖 / 洋室 4.5帖 / DK 7.5帖 / |
||
| 主要採光面 | 南 | 建物構造 | 鉄筋コンクリート(RC) |
| 築年月(築年数) | 1987年 3月(築38年) | 契約期間 | 2年 |
| 総戸数 | |||
| 入居可能日 | 相談 | 現況 | 空家 |
| 取引態様 | 一般媒介 | 特優賃 | |
| 保険 | 保険加入義務:有、保険名:家財保険、保険料:21500円、保険期間:2年 | ||
| 保証会社 | 保証加入義務:必加入、保証会社名:ジェイリース | ||
| 駐車場 | 無 | ||
| 設備条件 | 公営水道 / エレベーター / 敷地内ごみ置き場 / 2人入居可 / 室内洗濯機置場 / フローリング / バルコニー / バス・トイレ別 / シャワー / 浴槽 | ||
| その他条件 | 賃貸保証料:5万1,200円 仲介手数料:6万4,900円 | ||
| 備考 | 家から464mのところに、薬や日用品を買うのに便利なディスカウントドラッグ コスモス 南荘園店があります。間取りが3DKだと広々と生活を送る事が出来ます。専有面積55.19平米で、広々しております。別府市での住まい探しならお任せください。LIXIL不動産ショップ ファミリーホームは地域の不動産会社として、あらゆる条件にお応えできるよう努めています。 | ||
| 物件番号 | 59567125 | ||
| 情報公開日 | 2025年12月6日 | 次回更新予定日 | 2025年12月20日 |
| 取引条件の有効期限 | 2025年12月20日 | ||
| 取扱い会社 |
株式会社ファミリーホーム 〒874-0910 大分県別府市石垣西2丁目1-48 大分県知事(7)第2268号 |
||
0977-23-3911
営業時間:10:00~18:00 / 定休日:水
| 所在地 | 物件の住所を表示。(詳細住所は表示していない場合もある) | ||
|---|---|---|---|
| 交通 | 物件(部屋)の沿線駅・バス停を表示。(複数駅・バス停の利用が可能な場合は最大3件まで) | ||
| 間取り/詳細 | 数字は居室数を表示。LDKはそれぞれ「リビング」「ダイニング」「キッチン」、S(納戸)とは「納戸」「サービスルーム」「マルチルーム」「フリールーム」など建築基準法第28条に適合していないため、居室と認められない納戸その他の部分を表す。 | ||
| 価格 | 販売されている住戸の価格を表示。仲介手数料は含まない。 | ||
| 管理費 | 共同住宅の設備その他共用部分の維持および管理をするために必要な費用を表示。 | ||
| 修繕積立金 | 共用部分の修繕のために積立てる金額を表示。 | ||

【外観】