1 / 29
| 価格 |
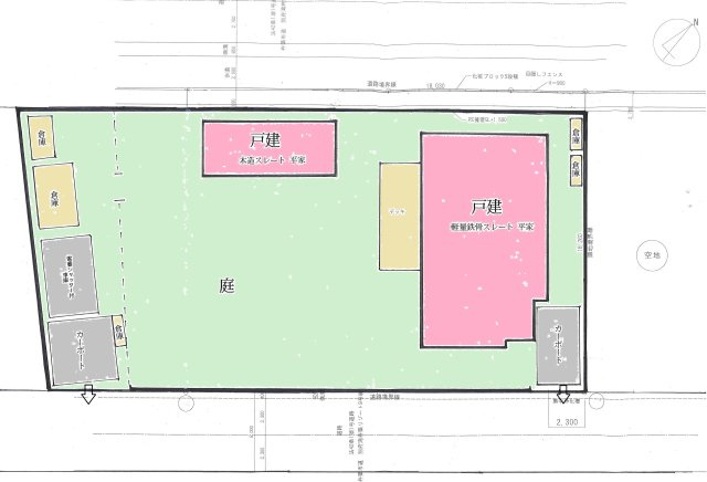
4,000万円 | 交通 | 日豊本線 「大神」駅 徒歩99分 |
|---|---|---|---|
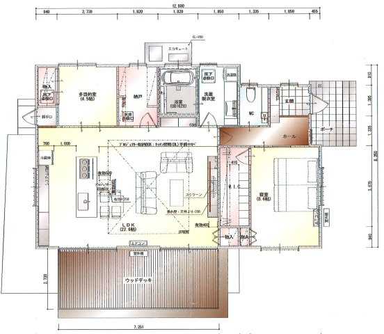
| 間取り | 1LDK+S(納戸) | 所在地 | 大分県杵築市大字熊野 |
| 建物面積/坪数 | 101.04㎡ / 30.56坪 | 土地面積/坪数 | 718.70㎡ / 217.4坪 |

【外観】母屋平家。約10年前に内外装リフォーム済で奇麗です!